Con su intervención en esta vivienda, Clysa ha logrado una cocina de marcado espíritu mediterráneo que, respetando la arquitectura y los materiales originales de la construcción, resulta diáfana, luminosa y muy acogedora.
La cocina se abre directamente a una zona de estar a través de un arco sostenido sobre dos pilares que, sin obstaculizar la visión, sirve para delimitar las zonas de trabajo y office.
Su luminosidad natural, propiciada por las ventanas y la puerta acristalada que dan a una terraza exterior, se potencia prescindiendo de tabiques divisores, y también aplicando una paleta cromática dominada por el blanco en paredes, techos, puertas, encimera, aplacados y mobiliario.


Para este último se opta por el modelo LINE-E de Santos en acabado Blanco seff, un diseño moderno, de perfil minimalista y líneas rectas que, con sus frentes lisos y sin tirador, se integra con naturalidad en la arquitectura de la vivienda, ofreciendo las máximas prestaciones en el mínimo espacio.
El toque cálido corre a cargo de la encimera en laminado Olmo claro de la isla, la lámpara con chapa de madera natural y el pavimento cerámico del suelo, que se extiende por toda la planta para conferir uniformidad al ambiente.


Las soluciones de integración aportadas por los muebles de Santos ayudan a que todo se encuentre siempre en su lugar, recogido y apartado de la vista, un aspecto clave en cocinas que se comunican con espacios de la casa destinados a relajarse y disfrutar.


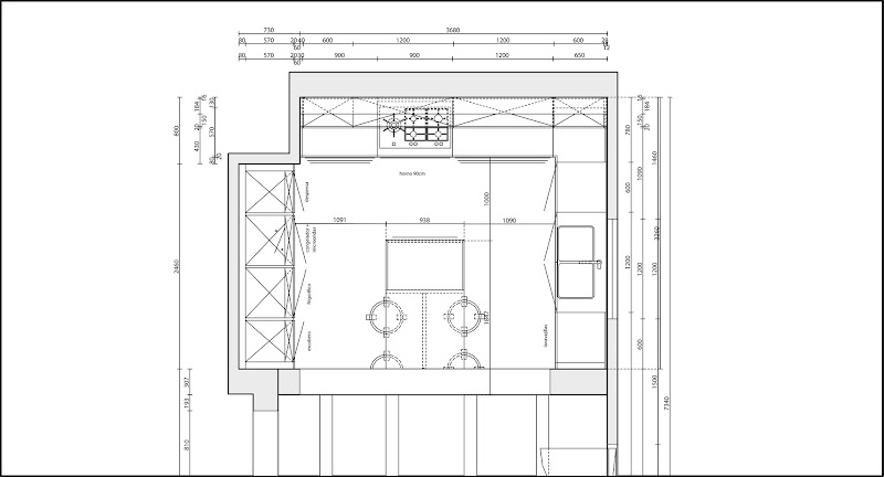
Partiendo de una isla central que funciona como zona de trabajo y mesa de office, Clysa distribuye el mobiliario de la cocina en forma U a lo largo de tres tabiques.
Así, en perpendicular a la isla se dispone una composición de tres muebles bajos que conforman la zona de cocción, complementada por un lineal de cuatro armarios altos.
Formando una L con la anterior, una segunda composición de muebles bajos acoge la zona de fregado, situada frente a la ventana para aprovechar la entrada de luz natural.
Por último, al otro lado de la isla, una zona de cuatro columnas integra de forma compacta y organizada electrodomésticos, despensa y espacios de almacenaje.
Con esta distribución se consigue una cocina totalmente equipada en la que todo se encuentra a un paso, por lo que se reducen los desplazamientos innecesarios a la hora de trabajar.


El frente liso sin tirador del diseño LINE-E de Santos destaca tanto por su aportación estética como por su funcionalidad, pues su sistema de gola continua, aplicado en muebles bajos, altos y columnas, permite una apertura cómoda y segura en cualquier punto.
El lavavajillas totalmente integrado también supone un buen ejemplo de que es posible lograr la máxima funcionalidad sin renunciar a la estética.


El amoblamiento a techo de los armarios altos y columnas permite ganar zonas adicionales de almacenaje, sacando más partido al espacio disponible.
Santos fabrica las partes del módulo portafregadero más susceptibles de entrar en contacto con el agua en tablero marino laminado, un material más resistente a la humedad, los detergentes y el desgaste.


La cocina se organiza alrededor de una isla central que, además de ofrecer espacio de almacenaje, funciona como área de preparación y mesa de office.
En perpendicular a este elemento se ubica la zona de cocción, que cuenta con una amplia superficie de trabajo situada sobre tres muebles bajos: en el centro un módulo portaplaca con horno y, a los lados, dos muebles estructurados en tres niveles de cajones. Este sistema proporciona una visión panorámica de los interiores y, complementado con los accesorios de Santos, facilita el acceso y la organización de los contenidos.
El nivel superior de cajones se destina a los elementos de uso más frecuente, organizados en bandejas de madera natural, extraíbles, componibles y compartimentadas.
La vajilla se recoge en el nivel intermedio, donde el platero se adapta al tamaño de cualquier plato o fuente para guardarlos de forma cómoda y segura. En el tercer nivel de cajones, pensado para organizar utensilios de gran tamaño, las cajas combinables ayudan en la clasificación y almacenaje de frutas y hortalizas.


Sobre esta zona se instala un lineal de cuatro armarios altos en los que se integra el grupo filtrante, una solución más discreta que las tradicionales campanas decorativas que, además, proporciona un espacio extra para almacenar.
El equipamiento interior de estos muebles se adapta a las necesidades de los usuarios, y su sistema de apertura plegable permite que las puertas se plieguen completamente hasta la parte más alta, evitando molestias al trabajar.
El área de fregado se dispone frente a la ventana, formando una L con la de cocción, e incluye un módulo de servicio, portafregadero con cubos para reciclaje de residuos y lavavajillas totalmente integrado.


Frente a la zona de fregado, una composición de cuatro armarios columna con modulación a techo completa el equipamiento: mientras los dos armarios centrales integran módulos de servicio, frigorífico y microondas, los de los extremos funcionan como despensa.
Para hacer más sencilla la organización de la compra, la parte alta de estas columnas se equipa con estantes, y la parte baja con cajones interiores. El frontal de estos últimos, realizado en el mismo material y color que el cuerpo del mueble, aporta un aspecto unificado para el interior, y su altura superior a la convencional impide que vuelquen los contenidos.

Proyecto realizado por CLYSA, distribuidor de la marca Santos.
C/ Miranda, 21
08940 Cornellá de Llobregat
Barcelona
T. 934 742 737 – www.clysa.com
Fotografia: Kris Moya Studio
La cocina se abre directamente a una zona de estar a través de un arco sostenido sobre dos pilares que, sin obstaculizar la visión, sirve para delimitar las zonas de trabajo y office.
Su luminosidad natural, propiciada por las ventanas y la puerta acristalada que dan a una terraza exterior, se potencia prescindiendo de tabiques divisores, y también aplicando una paleta cromática dominada por el blanco en paredes, techos, puertas, encimera, aplacados y mobiliario.
Para este último se opta por el modelo LINE-E de Santos en acabado Blanco seff, un diseño moderno, de perfil minimalista y líneas rectas que, con sus frentes lisos y sin tirador, se integra con naturalidad en la arquitectura de la vivienda, ofreciendo las máximas prestaciones en el mínimo espacio.
El toque cálido corre a cargo de la encimera en laminado Olmo claro de la isla, la lámpara con chapa de madera natural y el pavimento cerámico del suelo, que se extiende por toda la planta para conferir uniformidad al ambiente.
Las soluciones de integración aportadas por los muebles de Santos ayudan a que todo se encuentre siempre en su lugar, recogido y apartado de la vista, un aspecto clave en cocinas que se comunican con espacios de la casa destinados a relajarse y disfrutar.
Partiendo de una isla central que funciona como zona de trabajo y mesa de office, Clysa distribuye el mobiliario de la cocina en forma U a lo largo de tres tabiques.
Así, en perpendicular a la isla se dispone una composición de tres muebles bajos que conforman la zona de cocción, complementada por un lineal de cuatro armarios altos.
Formando una L con la anterior, una segunda composición de muebles bajos acoge la zona de fregado, situada frente a la ventana para aprovechar la entrada de luz natural.
Por último, al otro lado de la isla, una zona de cuatro columnas integra de forma compacta y organizada electrodomésticos, despensa y espacios de almacenaje.
Con esta distribución se consigue una cocina totalmente equipada en la que todo se encuentra a un paso, por lo que se reducen los desplazamientos innecesarios a la hora de trabajar.
El frente liso sin tirador del diseño LINE-E de Santos destaca tanto por su aportación estética como por su funcionalidad, pues su sistema de gola continua, aplicado en muebles bajos, altos y columnas, permite una apertura cómoda y segura en cualquier punto.
El lavavajillas totalmente integrado también supone un buen ejemplo de que es posible lograr la máxima funcionalidad sin renunciar a la estética.
El amoblamiento a techo de los armarios altos y columnas permite ganar zonas adicionales de almacenaje, sacando más partido al espacio disponible.
Santos fabrica las partes del módulo portafregadero más susceptibles de entrar en contacto con el agua en tablero marino laminado, un material más resistente a la humedad, los detergentes y el desgaste.
La cocina se organiza alrededor de una isla central que, además de ofrecer espacio de almacenaje, funciona como área de preparación y mesa de office.
En perpendicular a este elemento se ubica la zona de cocción, que cuenta con una amplia superficie de trabajo situada sobre tres muebles bajos: en el centro un módulo portaplaca con horno y, a los lados, dos muebles estructurados en tres niveles de cajones. Este sistema proporciona una visión panorámica de los interiores y, complementado con los accesorios de Santos, facilita el acceso y la organización de los contenidos.
El nivel superior de cajones se destina a los elementos de uso más frecuente, organizados en bandejas de madera natural, extraíbles, componibles y compartimentadas.
La vajilla se recoge en el nivel intermedio, donde el platero se adapta al tamaño de cualquier plato o fuente para guardarlos de forma cómoda y segura. En el tercer nivel de cajones, pensado para organizar utensilios de gran tamaño, las cajas combinables ayudan en la clasificación y almacenaje de frutas y hortalizas.
Sobre esta zona se instala un lineal de cuatro armarios altos en los que se integra el grupo filtrante, una solución más discreta que las tradicionales campanas decorativas que, además, proporciona un espacio extra para almacenar.
El equipamiento interior de estos muebles se adapta a las necesidades de los usuarios, y su sistema de apertura plegable permite que las puertas se plieguen completamente hasta la parte más alta, evitando molestias al trabajar.
El área de fregado se dispone frente a la ventana, formando una L con la de cocción, e incluye un módulo de servicio, portafregadero con cubos para reciclaje de residuos y lavavajillas totalmente integrado.
Frente a la zona de fregado, una composición de cuatro armarios columna con modulación a techo completa el equipamiento: mientras los dos armarios centrales integran módulos de servicio, frigorífico y microondas, los de los extremos funcionan como despensa.
Para hacer más sencilla la organización de la compra, la parte alta de estas columnas se equipa con estantes, y la parte baja con cajones interiores. El frontal de estos últimos, realizado en el mismo material y color que el cuerpo del mueble, aporta un aspecto unificado para el interior, y su altura superior a la convencional impide que vuelquen los contenidos.
Proyecto realizado por CLYSA, distribuidor de la marca Santos.
C/ Miranda, 21
08940 Cornellá de Llobregat
Barcelona
T. 934 742 737 – www.clysa.com
Fotografia: Kris Moya Studio

Comentarios
Publicar un comentario