Los propietarios de este triplex de 150 m2 situado en Barcelona, una pareja con dos hijos pequeños, deseaban contar con una cocina cómoda, funcional, luminosa y conectada con otros espacios de la casa.
Siguiendo estas directrices, Santos Maragall plantea un proyecto acorde con la arquitectura de la vivienda, diáfana y sin obstáculos visuales.
Para el mobiliario combina los modelos LINE-L y PLANO de Santos en acabado Gris nube, dos diseños sin tirador, de perfil minimalista y formas simples, que se integran con naturalidad en el interiorismo.
La cocina se abre directamente al salón comedor y, para dotarla de mayor luminosidad, se reemplaza uno de sus tabiques por un gran panel acristalado.
El pavimento y las paredes en microcemento gris oscuro, contrastando con el color blanco de muebles y techo, confiere carácter y personalidad a la estancia, al tiempo que contribuye a diferenciarla del salón comedor.
La barra de haya alistonada, realizada a medida, es un detalle que aporta calidez y equilibrio a un espacio pensado para trabajar y disfrutar.

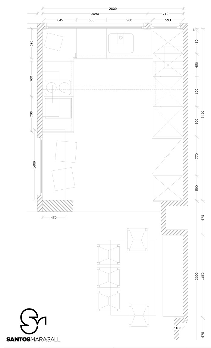
Santos Maragall distribuye el mobiliario de la cocina en forma de U, con las zonas de fregado y preparación situadas en la parte central, bajo una ventana para aprovechar la entrada de luz exterior.
A la izquierda de estos módulos se ubica la zona de cocción, con una barra de madera anclada, y a la derecha una zona de armarios columna con electrodomésticos y soluciones de almacenaje.
Esta disposición aprovecha al máximo los 10 m2 de la estancia, logrando que todo se encuentre a un paso cuando se elabora un plato.
Además, permite reservar un amplio espacio central para que los usuarios trabajen cómodamente, moviéndose con libertad y compartiendo tareas sin molestarse.

El frente liso sin tirador del modelo LINE-L de Santos destaca por su aportación estética, aunque también cuenta con una importante función práctica ya que, gracias a su sistema de gola continua, permite la apertura en cualquier punto. Un perfil de aluminio fijado en el mueble deja el espacio suficiente para tirar del frente y poder abrirlo de forma cómoda y segura.
Un discreto rebaje fresado en la gola mejora la circulación del aire en la zona de la placa de cocción, contribuyendo a su correcto funcionamiento. Este sistema, desarrollado por Santos, permite mantener el diseño de los frentes y aprovechar el cajón situado bajo el electrodoméstico.
Las múltiples soluciones de integración aportadas por el mobiliario de Santos ayudan a que todo se encuentre siempre organizado
y fuera de la vista, un detalle a tener en cuenta en cocinas abiertas a otras estancias de la casa.
El lavavajillas, totalmente integrado, constituye un claro ejemplo de que es posible lograr la máxima funcionalidad sin renunciar a la estética.

Dos módulos bajos conforman el área de fregado y preparación, ubicada en el centro de la estancia. Esta zona incorpora un lavavajillas totalmente integrado y un módulo portafregadero con cubos para reciclaje de residuos, además de cajones extraíbles para organizar accesorios de limpieza.

Formando una L con estos muebles se dispone el área de cocción, equipada con dos módulos portaplaca estructurados en tres niveles de cajones. Este sistema proporciona una visión panorámica de los contenidos y, complementado con los accesorios de interior de Santos, facilita el acceso y la organización de menaje, loza, alimentos y utensilios de gran tamaño.
En el nivel superior, las bandejas realizadas en madera natural, extraíbles, componibles y compartimentadas, recogen los elementos de uso más frecuente. En el nivel intermedio, el platero ayuda a ordenar la vajilla evitando que los platos se rocen. En el nivel inferior, pensado para ordenar ollas, cacerolas y sartenes, las cajas combinables también ayudan a clasificar y almacenar frutas y hortalizas.

Anexa a la zona de preparación, frente al tabique acristalado que da a una escalera interior, se instala una barra de haya para disfrutar de desayunos o comidas rápidas.
El amoblamiento se completa con una composición de seis armarios columna, en los que se integran horno, frigorífico y hasta cuatro amplios módulos de servicio para almacenar menaje y alimentos de forma organizada.




Proyecto realizado por Santos Maragall, distribuidor de la marca Santos.
Passeig Maragall, 41
08041 Barcelona
T 933 158 321
www.santosmaragall.com
info@santosmaragall.com
DECORACIÓN
Marta Sánchez Carcelller y Xavier Ancheta
FOTOGRAFÍA
Kris Moya Studio
Siguiendo estas directrices, Santos Maragall plantea un proyecto acorde con la arquitectura de la vivienda, diáfana y sin obstáculos visuales.
Para el mobiliario combina los modelos LINE-L y PLANO de Santos en acabado Gris nube, dos diseños sin tirador, de perfil minimalista y formas simples, que se integran con naturalidad en el interiorismo.
La cocina se abre directamente al salón comedor y, para dotarla de mayor luminosidad, se reemplaza uno de sus tabiques por un gran panel acristalado.
El pavimento y las paredes en microcemento gris oscuro, contrastando con el color blanco de muebles y techo, confiere carácter y personalidad a la estancia, al tiempo que contribuye a diferenciarla del salón comedor.
La barra de haya alistonada, realizada a medida, es un detalle que aporta calidez y equilibrio a un espacio pensado para trabajar y disfrutar.
Santos Maragall distribuye el mobiliario de la cocina en forma de U, con las zonas de fregado y preparación situadas en la parte central, bajo una ventana para aprovechar la entrada de luz exterior.
A la izquierda de estos módulos se ubica la zona de cocción, con una barra de madera anclada, y a la derecha una zona de armarios columna con electrodomésticos y soluciones de almacenaje.
Esta disposición aprovecha al máximo los 10 m2 de la estancia, logrando que todo se encuentre a un paso cuando se elabora un plato.
Además, permite reservar un amplio espacio central para que los usuarios trabajen cómodamente, moviéndose con libertad y compartiendo tareas sin molestarse.
El frente liso sin tirador del modelo LINE-L de Santos destaca por su aportación estética, aunque también cuenta con una importante función práctica ya que, gracias a su sistema de gola continua, permite la apertura en cualquier punto. Un perfil de aluminio fijado en el mueble deja el espacio suficiente para tirar del frente y poder abrirlo de forma cómoda y segura.
Un discreto rebaje fresado en la gola mejora la circulación del aire en la zona de la placa de cocción, contribuyendo a su correcto funcionamiento. Este sistema, desarrollado por Santos, permite mantener el diseño de los frentes y aprovechar el cajón situado bajo el electrodoméstico.
Las múltiples soluciones de integración aportadas por el mobiliario de Santos ayudan a que todo se encuentre siempre organizado
y fuera de la vista, un detalle a tener en cuenta en cocinas abiertas a otras estancias de la casa.
El lavavajillas, totalmente integrado, constituye un claro ejemplo de que es posible lograr la máxima funcionalidad sin renunciar a la estética.
Dos módulos bajos conforman el área de fregado y preparación, ubicada en el centro de la estancia. Esta zona incorpora un lavavajillas totalmente integrado y un módulo portafregadero con cubos para reciclaje de residuos, además de cajones extraíbles para organizar accesorios de limpieza.
Formando una L con estos muebles se dispone el área de cocción, equipada con dos módulos portaplaca estructurados en tres niveles de cajones. Este sistema proporciona una visión panorámica de los contenidos y, complementado con los accesorios de interior de Santos, facilita el acceso y la organización de menaje, loza, alimentos y utensilios de gran tamaño.
En el nivel superior, las bandejas realizadas en madera natural, extraíbles, componibles y compartimentadas, recogen los elementos de uso más frecuente. En el nivel intermedio, el platero ayuda a ordenar la vajilla evitando que los platos se rocen. En el nivel inferior, pensado para ordenar ollas, cacerolas y sartenes, las cajas combinables también ayudan a clasificar y almacenar frutas y hortalizas.
Anexa a la zona de preparación, frente al tabique acristalado que da a una escalera interior, se instala una barra de haya para disfrutar de desayunos o comidas rápidas.
El amoblamiento se completa con una composición de seis armarios columna, en los que se integran horno, frigorífico y hasta cuatro amplios módulos de servicio para almacenar menaje y alimentos de forma organizada.
Proyecto realizado por Santos Maragall, distribuidor de la marca Santos.
Passeig Maragall, 41
08041 Barcelona
T 933 158 321
www.santosmaragall.com
info@santosmaragall.com
DECORACIÓN
Marta Sánchez Carcelller y Xavier Ancheta
FOTOGRAFÍA
Kris Moya Studio

Comentarios
Publicar un comentario