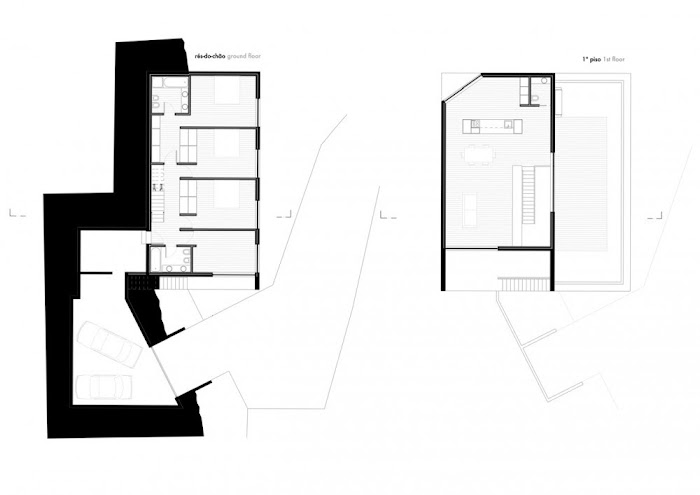
"En un clima duro con un escenario montañoso, dominado por roca granito donde la humanidad ha marcado poco su presencia, existe la demanda de crear un objeto que se mezcla con el paisaje.
El hormigón expuesto responde a la demanda del material y el volumen se quiebra siguiendo la pendiente."






















Arquitectos: Oficina d’Arquitectura
Ubicación: Serra de Freita, Arouca, Portugal
Equipo: Florêncio da Costa, José Pinho
Área: 316.0 m2
Fotografías: Oficina d’Arquitectura
El hormigón expuesto responde a la demanda del material y el volumen se quiebra siguiendo la pendiente."




Arquitectos: Oficina d’Arquitectura
Ubicación: Serra de Freita, Arouca, Portugal
Equipo: Florêncio da Costa, José Pinho
Área: 316.0 m2
Fotografías: Oficina d’Arquitectura

Comentarios
Publicar un comentario