Nido de Anguilas es el nombre que se le da generalmente a los terrenos muy pequeños en Japón. El ancho de este terreno en Echo Park es de 3 metros, lugar perfecto para experimentar con la vida urbana compacta y eficiente. A través de la construcción vertical, simple y mínima, el arquitecto Simon Storey logró utilizar cada metro cuadrado de espacio para crear una casa / estudio de trabajo.
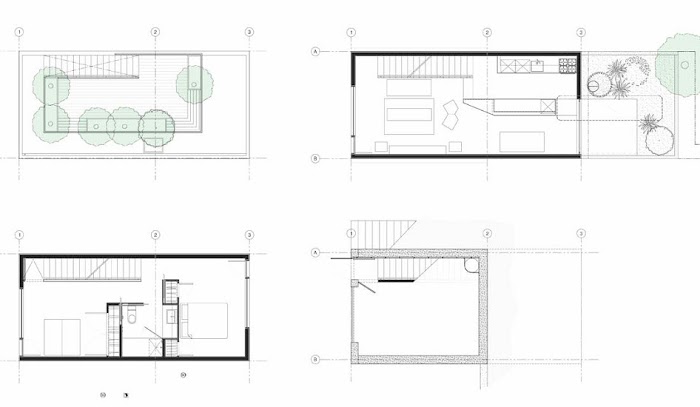
El tamaño del terreno es de 73 metros cuadrados. Para maximizar el terreno, la casa original fue demolida por completo, salvo algunos muros subterráneos, que son todavía visibles. Al construir el total del terreno, la normativa obligó que la casa fuera resistente al fuego en el exterior.

El espacio interior se ha duplicado para crear superficies cálidas de madera y mobiliario que atraviesa todos los niveles. La luz natural entra a todos los espacios a través de la escalera. El techo es habitable, elevándose sobre la ciudad densa.








Arquitectos: Anonymous Architects – Simon Storey
Ubicación: Echo Park, Los Angeles, CA, Estados Unidos
Contratista: Armex Construction, Los Angeles
Fecha: Marzo 2011
Superficie: 90 m2
Fotografías: Steve King

El tamaño del terreno es de 73 metros cuadrados. Para maximizar el terreno, la casa original fue demolida por completo, salvo algunos muros subterráneos, que son todavía visibles. Al construir el total del terreno, la normativa obligó que la casa fuera resistente al fuego en el exterior.
El espacio interior se ha duplicado para crear superficies cálidas de madera y mobiliario que atraviesa todos los niveles. La luz natural entra a todos los espacios a través de la escalera. El techo es habitable, elevándose sobre la ciudad densa.
Arquitectos: Anonymous Architects – Simon Storey
Ubicación: Echo Park, Los Angeles, CA, Estados Unidos
Contratista: Armex Construction, Los Angeles
Fecha: Marzo 2011
Superficie: 90 m2
Fotografías: Steve King

Comentarios
Publicar un comentario